top of page

PROJECT DESCRIPTION
Bright Beginnings Elementary School was created using the softwares Revit and Enscape. Bright Beginnings is a place for students to learn while feeling comfortable and rejuvenated. Though the use of natural materials and bright colors, students gain a sense of belonging and happiness.





FLOOR PLAN AND SECTION CUT

LEVEL 1.pdf (11 x 8.5 in)
LEVEL 1

LEVEL 2.pdf (11 x 8.5 in)
LEVEL 2

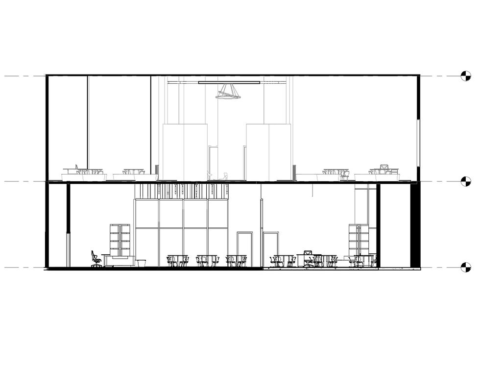
SECTION.pdf (11 x 8.5 in)
SECTION CUT

LEVEL 1.pdf (11 x 8.5 in)
LEVEL 1
1/3
bottom of page